手機號
未認證執照
孫麗莉()

普通會員
孫麗莉 ()
akh-0.66k系列開口式電流互感器主要應用于配電系統改造項目,安裝方便,無須拆一次母線,亦可帶電操作,不影響客戶正常用電,為用戶改造項目節省人力、物力、財力,提高效率。該系列電流互感器可與繼電器保護、測量以及計量裝置配套使用。
2 型號說明
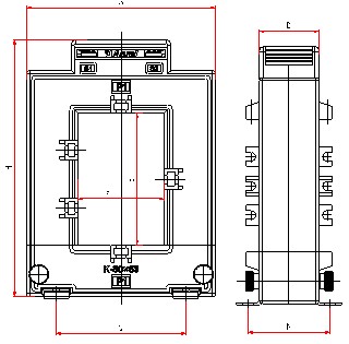
3 規格尺寸
| 尺寸 規格型式 |
外形尺寸 | 穿孔尺寸 | 安裝尺寸 | 安裝尺寸 | |||||
| w | h | d | m | n | a | e | 規格(a) | 質量(kg) | |
| k-30×20 | 90 | 114 | 40 | 50 | 49.5 | 22 | 32 | 100-400 | 0.8-0.9 |
| k-80×50 | 114 | 159 | 36 | 78 | 49.5 | 52 | 82 | 250-1000 | 1.25-1.4 |
| k-80×80 | 144 | 159 | 36 | 108 | 49.5 | 82 | 82 | 250-1000 | 1.3-1.5 |
| k-120×80 | 144 | 199 | 36 | 108 | 49.5 | 82 | 122 | 500-1500 | 1.6-1.8 |
| k-120×60 | 164 | 214 | 52 | 108 | 49.5 | 62 | 122 | 300-2500 | 1.6-1.8 |
| k-160×80 | 184 | 254 | 52 | 120 | 49.5 | 82 | 162 | 1000-5000 | 2.8-3.7 |
4 規格參數對照表
5 安裝方法
akh-0.66k系列開口式電流互感器安裝方法

| 聯系人 | 需求數量 | 時間 | 描述 |
|---|---|---|---|
| 暫無產品詢價記錄 | |||
| 采購商 | 成交單價(元) | 數量 | 成交時間 |
|---|---|---|---|
| 暫無購買記錄 | |||
地區:武漢
主營產品:武昌公司注冊,武昌注冊公司,武昌代理記賬地區:成都
主營產品:電磁閥,氣缸,過濾器地區:武漢
主營產品:洪山公司注冊,洪山注冊公司,洪山代理記賬地區:武漢
主營產品:東西湖公司注冊,東西湖代理記賬,東西湖代賬公司